产品中心Product
东莞市深发体育设备有限公司 电话:0769-22888597 传真:0769-21686904 手机:13922909787 13686053767 联系人:欧先生 邮箱:sfsport@163.com 网址:http://www.dgsfsport.com 地址:东莞市厚街镇赤岭莞太路65号厚达科技园三楼
东莞市深发体育设备有限公司
电话:0769-22888597
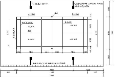
深发品牌弹性丙烯酸排球场地面 点击放大 产品名称: 深发品牌弹性丙烯酸排球场地面 公司名称: 东莞市深发体育设备有限公司 产品型号: 深发品牌弹性丙烯酸排球场地面 产品简介: 您的满意!我的放心! 详细说明 弹性丙烯酸面层(弹性球场面层厚度3.0mm-8mm,可适用于沥青基层或高质量的混凝土基层) 弹性丙烯酸排球场的特点: 1、丙烯酸排球场专用涂料,采用100%高级丙烯酸材料制成,无毒、无石棉,为环 保型面层材料; 2、适用于各种气候环境,耐紫外线照射,颜色持久不褪。色泽纯正; 3、使用寿命长,使用年限可达8-10年(具体情况视场地基础质量及施工质量而定); 4、丙烯酸排球场专用涂料为自清洁产品,维护保养便利高压水冲洗即可; 5、性能价格比极具竞争力; 6、硬地丙烯酸面层相对于弹性面层,因其厚度原因,对场地平整度要求相对较高。 7、场地平整、硬度较强、耐磨、使用寿命长、颜色鲜艳且耐紫外线;不易褪色,色彩多种、保护方便、无毒无害;属环保型材料、造价适中、品位高尚 施工条件: 温 度:地面温度不低于5℃,不高于45℃; 湿 度:空气相对湿度不超过85%; 坡 度:不低于3:1000,不大于5:1000 ; 平整度:三米直尺高差不超过3mm; 排球场标准尺寸图
深发品牌弹性丙烯酸排球场地面
您的满意!我的放心!